Work
Contact
Work
Contact
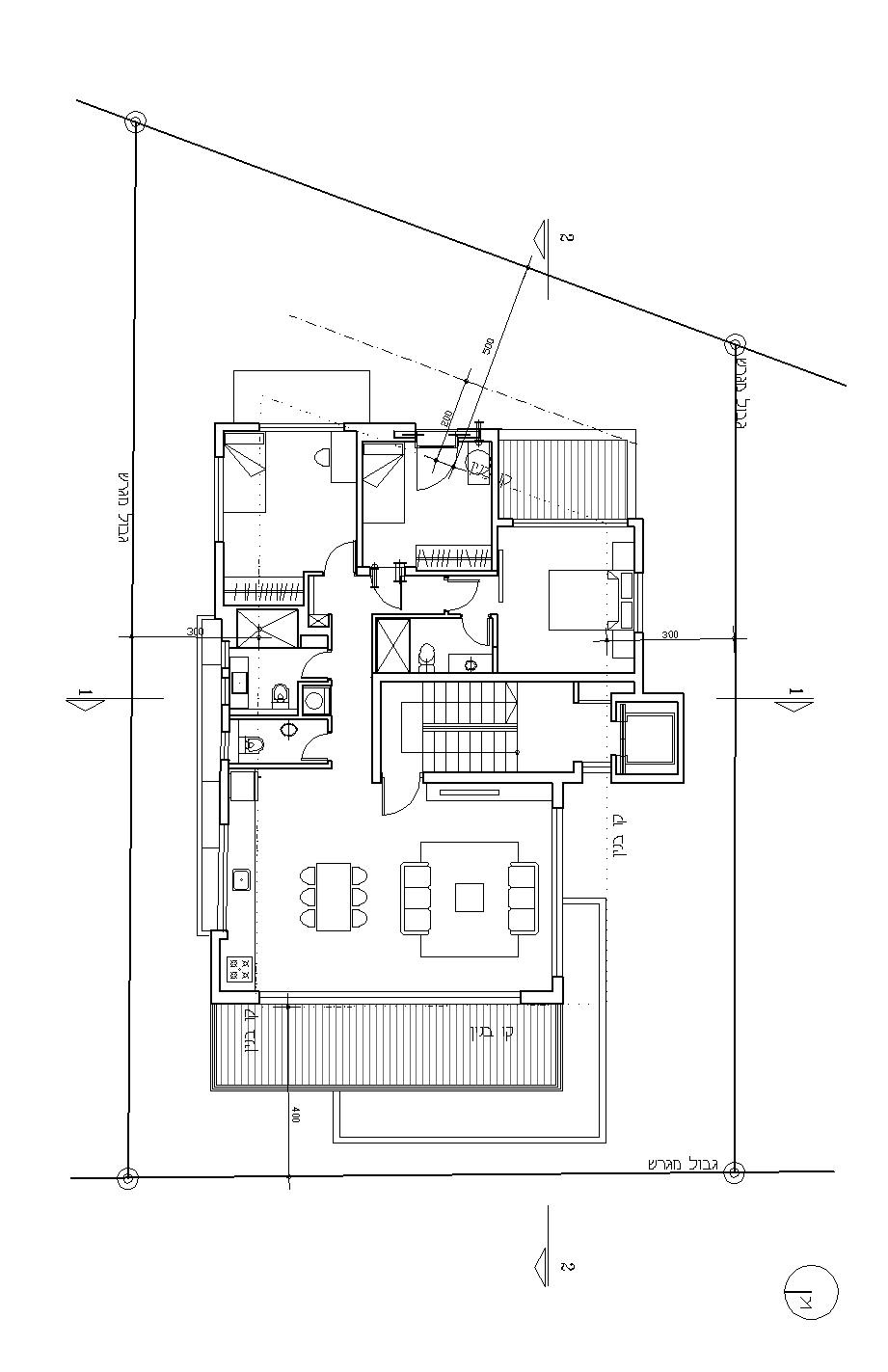
ROEY FISCHER-LEVENTON ARCHITECT

Hovevey Zion 6 ST

Location: tel aviv Total area: sqm Programme: Residence Completed

You may also like

SIMTAT SHEFER 5 ST.
2022
Odessa 29 ST
2022
MISHMAR HAYARDEN 55 St.
2022
Yehuda Hayamit 20 St.
2021
yishkon 39 st
2022
ELHARIZI 11 ST
2022
Isaiah 44 st
2022
KEHILAT KISHINOV 14 ST.
2022
Gordon 33 St.
2021
Nachmani 63 st
2022
↑Back to Top
ROEY FISCHER-LEVENTON ARCHITECT