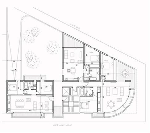
Location: tel aviv Total area: sqm Programme: Residence | Preservation Completed In collaboration with Moran Palamoni Architects