Work
Contact
Work
Contact
ROEY FISCHER-LEVENTON ARCHITECT

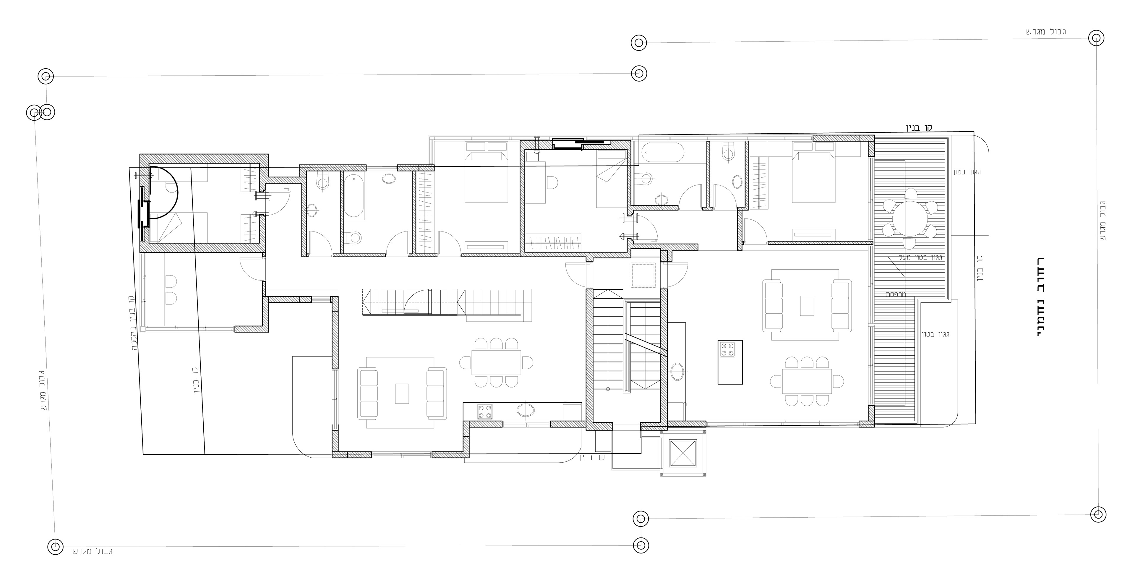
Nachmani 63 st

Location: tel aviv Total area: sqm Programme: Residence | Preservation Completed

You may also like

SIMTAT SHEFER 5 ST.
2022
KEHILAT KISHINOV 14 ST.
2022
ELHARIZI 11 ST
2022
yishkon 39 st
2022
Odessa 29 ST
2022
Isaiah 44 st
2022
Rashi 64 St.
2021
rashi 33 st.
2021
Della Reina 9 st.
2021
MISHMAR HAYARDEN 55 St.
2022
↑Back to Top
ROEY FISCHER-LEVENTON ARCHITECT