Work
Contact
Work
Contact
ROEY FISCHER-LEVENTON ARCHITECT
Rashi 64 St.
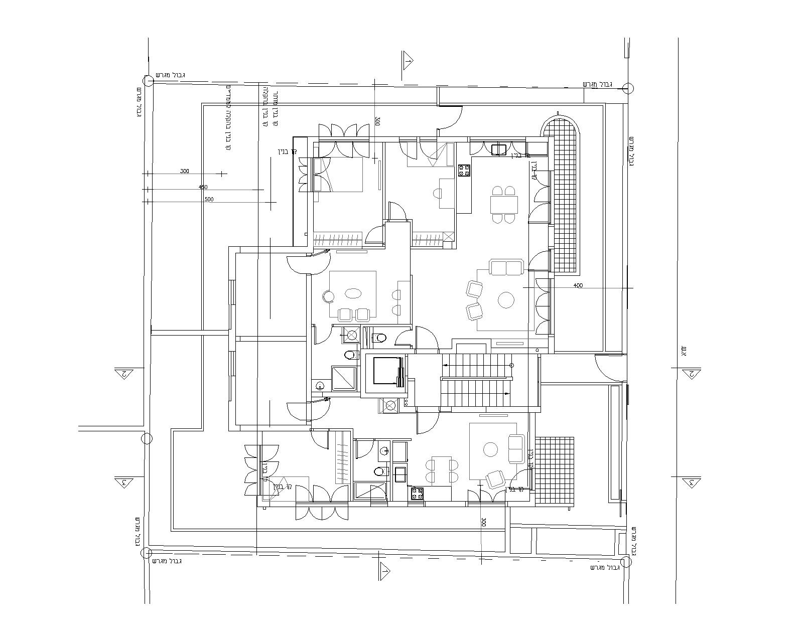
Location: tel aviv Total area: sqm Programme: Residence Completed
↑
Back to Top